|
|
Drusus-Kaserne in Schlanders | Caserma Druso a Silandro
Auftraggeberin: Landesdenkmalamt | Committenza: Soprintendenza provinciale ai beni culturali
2022/23
|
LEISTUNGEN | PRESTAZIONI
Grundlagenerhebung, architekturhistorische Recherche, sozialgeschichtliche Recherche
Indagine di base, ricerca storico-architettonica, ricerca storico-sociale
BAUFORSCHUNG
bauforschung-tirol: Barbara Lanz, Sonja Mitterer, Patricia Tartarotti (bauforschung-tirol.com)
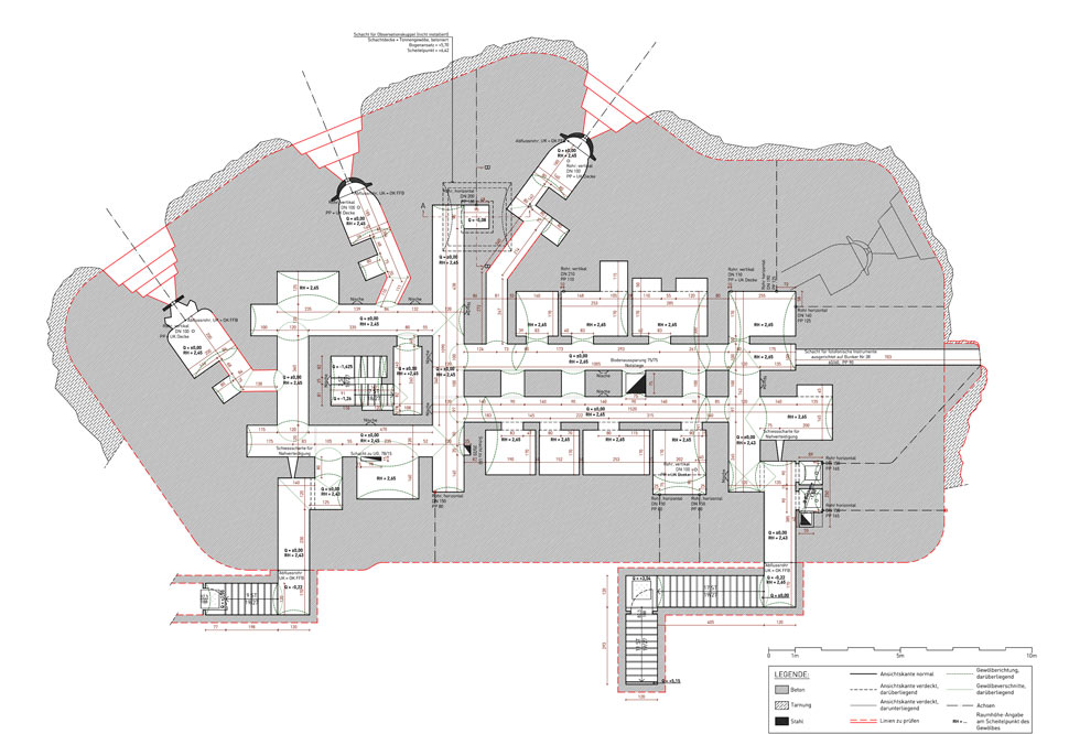
Im Auftrag des Landesdenkmalamtes wurde die Drusus-Kaserne in Schlanders erforscht. Im Team mit den Forscherinnnen von bauforschung-tirol Barbara Lanz, Sonja Mitterer und der Restauratorin Patricia Tartarotti wurde der Gesamtbestand der Kaserne erhoben und dokumentiert. Die Ergebnisse der Arbeit wurden in einer Studie zusammengefasst, die als Grundlage für eine Bewertung der Denkmalschutzbindung der Kaserne dient.
La Caserma Druso di Silandro è stata oggetto di ricerche per conto dell'Ufficio Provinciale dei Monumenti. In team con le ricercatrici di bauforschung-tirol Barbara Lanz, Sonja Mitterer e la restauratrice Patricia Tartarotti, è stata rilevata e documentata l'intera caserma. L'esito del lavoro è stato riassunto in uno studio che funge da base per la valutazione dello stato di tutela della caserma.
Luftaufnahme des Kommandogebäudes | Ripresa aerea della Palazzina Comando © Tiberio Sorvillo
<
|
|
|
|
Ausstellungsbeitrag zur Sperre Gampenpass – Gampen Gallery, St.Felix (I) Contributo espositivo sulle opere defensive al Passo Palade – Gampen Gallery , San Felice (I)
Auftraggeber: Gemeinde St. Felix | Appaltante: Comune San Felice
2015
|
LEISTUNGEN | PRESTAZIONI
Konzeption, Recherche, Text, Illustration, 3D-Modeling, Visualisierung, Computergrafik
Concezione, ricerca, testo, illustrazione, modellazione 3D, visualizzazione, grafica computerizzata
MITARBEIT 3D-MODELING | COLLABORAZINE 3D-MODELING
Dipl.-Ing. Wolfgang Schmidts
LEKTORAT | LETTORATO
Christine Vescoli
ÜBERSETZUNG | TRADUZIONE
Sabina De Lorenzo

Eröffnung der Ausstellung | Inaugurazione della mostra


Gesamtansicht der Bunkeranlage von Nordosten | Vista generale dell'opera difensiva da Nordest


Schema der Bunkeranlage | Schema dell'opera difensiva


Kampfstände für Artilleriewaffen (Vordergrund) | Postazioni per armi d'artiglieria (primo piano)


Kampfstände für Infanteriewaffen mit Observationsturm | Postazioni per armi di fanteria con torretta osservatorio


Axonometrie der Bunkeranlage | Assonometria dell'opera


<
|
|
|
|
Generalsanierung und Umbau Atelierwohnung, 1030 Wien Risanamento e ristrutturazione appartamento studio, 1030 Vienna
Bauherrenschaft: Privat | Committenza: privata
2012/13
|
LEISTUNGEN | PRESTAZIONI
Entwurf, Einreichung, Ausführungsplanung, Bauleitung, Planung Innenraumausstattung, Abrechnung
Progetto preliminare, progetto, progettazione esecutiva, direzione lavori, progettazione interni, conteggio finale
STATIK | STATICA
Univ.Prof. Dipl.-Ing. Dr.techn. Karlheinz Wagner
AUSFÜHRENDE FIRMA | IMPRESA ESECUTRICE
BR Projektbau Bausan GmbH
BAUKOSTEN | COSTI DI COSTRUZIONE
< 100.000 €
<
|
|
|
|
Grobkonzept für eine Dauerausstellung am Bunker Nr.40 in Schabs (I) Concetto generale per una mostra permanente all' opera Nr.40 di Sciaves (I)
Auftraggeber: Gemeinde Natz/Schabs | Appaltante: Comune Naz/Sciaves
2014
|
[DE]
Zivile Nutzung einer militärischen Struktur lebensfeindlicher Ausrichtung bedeutet per se ihre Ausserstandsetzung,
Hervorrufen der militärischen Dysfunktion. Beschreibung und Information über eine bisher geheime militärische Infrastruktur sind unumkehrbare, strukturfeindliche Handlungen. Über eine zivile Infrastruktur der Betrachtungsmöglichkeiten, die sich vergleichbarer Mittel bedient wie die militärische Struktur selbst,
werden Bestandteile des Alpenwalls erkenntlich und somit militärisch unbrauchbar gemacht.
Ehemalige Objekte der Bedrohung werden zu Objekten der Betrachtung.
Die vollkommene Sinnlosigkeit der Errichtung des italienischen Alpenwalls bildet den Ausgangspunkt der Betrachtung. Über diverse Beschreibungsmodelle wird versucht, menschliche und materielle Dimensionen des Alpenwalls näherzubringen.
Über die Perspektive von Akteuren, Zeitzeugen von der Bauzeit bis herauf ins Heute, kommen der Kontext und der Aufwand bei der Entstehung des größten ungenutzten Bauwerks Südtirols zur Sprache, genauso wie die nahtlose
Geschichte der Zweckentfremdung, die der Großteil des Alpenwalls von der Bauzeit 1939-42 bis ins Heute erfahren hat.
Um die Charakteristiken der Gebäudetypologie Bunker zu vermitteln, soll das Gebäude nicht nur teilweise begehbar,
sondern die baulichen Dimensionen anhand massstabsgetreuer physische Modelle allgemein verständlich werden. Das Verhältnis von Aussenwandstärke zu innerem Volumen lässt erahnen, nach welch lebensfeindlichen Bedingungen und Größen der Gewalteinwirkung die baulichen Maßnahmen ausgelegt worden sind.
Die Innenräume sollen nicht dazu benutzt werden, ein weiteres „Bunkermuseum“ zu errichten, sondern dazu dienen das menschliche Erleben eines solchen Baus zu ermöglichen: ein physisch und psychisch sehr markanter Eindruck von Enge, Dunkelheit, Luftfechte, niediger Temperatur, Totenstille und vollkommener Abgeschottetheit
von der Aussenwelt.
Die beabsichtigte, nicht vollständig mögliche Begehbarkeit des Bunkers soll verhindern, daß eine Profanisierung
dieses Kriegsgeräts eintreten kann und der Abnutzung der bis daton ungebrauchten Innenräume zuvorkommen.
Bei Veranstaltungen, für die die Mannschaftsräume im Untergeschoß infrastrukturell erschlossen werden,
kann der gesamte Bunker besichtigt werden.
Die schon länger geschehene namentliche Aneignung des Bunkers durch die Bevölkerung soll permanent etabliert
und die Umbenennung des Militärobjekts „Opera n.40“ in „Schusterbauer Bunker“ nun offiziell vollzogen werden.
Der Name stammt von der danebenliegenden Hofstelle gleichen Namens, zu der der Grund gehörte, auf welchem
der Bunker errichtet wurde. Die Öffnung des Gebäudes für die Allgemeinheit und die Errichtung einer Kulturstätte
sowie eines Spielplatzes haben einen gemeinsamen Zweck: die Aneignung dieses Gebäudes durch die Zivilbevölkerung.

VISUALISIERUNGEN | VISUALIZZAZIONI
LAGEPLAN | PLANIMETRIA
ANSICHT ZUGANG UG | VISTA ACCESSO PIANO INTERRATO
INNENANSICHT MANNSCHAFTSRAUM UG | VISTA INTERNA CAMERATA PIANO INTERRATO

[DE]
Zivile Nutzung einer militärischen Struktur lebensfeindlicher Ausrichtung bedeutet per se ihre Ausserstandsetzung,
Hervorrufen der militärischen Dysfunktion. Beschreibung und Information über eine bisher geheime militärische Infrastruktur sind unumkehrbare, strukturfeindliche Handlungen. Über eine zivile Infrastruktur der Betrachtungsmöglichkeiten, die sich vergleichbarer Mittel bedient wie die militärische Struktur selbst,
werden Bestandteile des Alpenwalls erkenntlich und somit militärisch unbrauchbar gemacht.
Ehemalige Objekte der Bedrohung werden zu Objekten der Betrachtung.
Die vollkommene Sinnlosigkeit der Errichtung des italienischen Alpenwalls bildet den Ausgangspunkt der Betrachtung. Über diverse Beschreibungsmodelle wird versucht, menschliche und materielle Dimensionen des Alpenwalls näherzubringen.
Über die Perspektive von Akteuren, Zeitzeugen von der Bauzeit bis herauf ins Heute, kommen der Kontext und der Aufwand bei der Entstehung des größten ungenutzten Bauwerks Südtirols zur Sprache, genauso wie die nahtlose
Geschichte der Zweckentfremdung, die der Großteil des Alpenwalls von der Bauzeit 1939-42 bis ins Heute erfahren hat.
Um die Charakteristiken der Gebäudetypologie Bunker zu vermitteln, soll das Gebäude nicht nur teilweise begehbar,
sondern die baulichen Dimensionen anhand massstabsgetreuer physische Modelle allgemein verständlich werden. Das Verhältnis von Aussenwandstärke zu innerem Volumen lässt erahnen, nach welch lebensfeindlichen Bedingungen und Größen der Gewalteinwirkung die baulichen Maßnahmen ausgelegt worden sind.
Die Innenräume sollen nicht dazu benutzt werden, ein weiteres „Bunkermuseum“ zu errichten, sondern dazu dienen das menschliche Erleben eines solchen Baus zu ermöglichen: ein physisch und psychisch sehr markanter Eindruck von Enge, Dunkelheit, Luftfechte, niediger Temperatur, Totenstille und vollkommener Abgeschottetheit
von der Aussenwelt.
Die beabsichtigte, nicht vollständig mögliche Begehbarkeit des Bunkers soll verhindern, daß eine Profanisierung
dieses Kriegsgeräts eintreten kann und der Abnutzung der bis daton ungebrauchten Innenräume zuvorkommen.
Bei Veranstaltungen, für die die Mannschaftsräume im Untergeschoß infrastrukturell erschlossen werden,
kann der gesamte Bunker besichtigt werden.
Die schon länger geschehene namentliche Aneignung des Bunkers durch die Bevölkerung soll permanent etabliert
und die Umbenennung des Militärobjekts „Opera n.40“ in „Schusterbauer Bunker“ nun offiziell vollzogen werden.
Der Name stammt von der danebenliegenden Hofstelle gleichen Namens, zu der der Grund gehörte, auf welchem
der Bunker errichtet wurde. Die Öffnung des Gebäudes für die Allgemeinheit und die Errichtung einer Kulturstätte
sowie eines Spielplatzes haben einen gemeinsamen Zweck: die Aneignung dieses Gebäudes durch die Zivilbevölkerung.

<
|
|
|
|
Wohnhaus in besonderer landschaftlicher Lage – Gemeinde Eppan a.d.W. (I) Edificio residenziale in posizione paesaggistica singolare – Comune Appiano s.s.d.v. (I)
Auftraggeber: privat | Appaltante: privato
2012-2015
|
LEISTUNGEN | PRESTAZIONI
Beratung, Vorentwurf, Entwurf, Einreichplanung
Consulenza, progettto di massima, progetto definitivo
BAUKOSTEN | COSTI DI COSTRUZIONE
1.400.000 €
[DE]
Die einzigartige Lage des Grundstücks hat das Gebäude in vielerelei Hinsicht bestimmt. Es liegt am höchsten Punkt einer Anhöhe in einem breiten Talkessel und erlaubt unvergleichliche Blicke in die Landschaft. Daher wurde ein Blickschema aufgebaut, das den Grundriß strukturiert und definiert, nach welchen landschaftlichen Formationen sich die unterschiedlichen Räumlichkeiten ausrichten.
Das Projekt ist ein Abbruch mit Wiederaufbau bei Erweiterung der Kubatur. Das bestehende Gebäude soll einem neuen, besser in die landschaftliche Situation passenden Gebäudekörper weichen:
Das neue Projekt kann sich mit einem flachen Dach vom Erscheinungsbild stark zurücknehmen, da die Höhe des Baukörpers um mehr als 3 Meter reduziert wird. Die horizontale Farbgliederung des Baukörpers passt sich im Zusammenspiel mit dem flachen Dach in die Silhouette der Anhöhe ein. Die Knicke im Baukörper gliedern die Fläche in kleinere Teile und wirken der Länge des Bauköpers entgegen. Das Obergeschoß wird farblich vom Erdgeschoß abgehoben und orientiert sich an der Tonalität des Hintergrunds: die Berge haben je nach Distanz und Jahreszeit einen dunkelgünen oder dunkelbraunen bis bläulich-grauen Farbton. Eine dunkel gebeizte Holzlattung sticht daraus nur wenig hervor.
Von der östlichen Strassenseite schottet sich das Gebäude stark ab, an allen drei anderen Seiten verfügt es über sehr große Öffnungen, die Blicke in alle Richtungen freigeben. Der Grundriß ist um eine zentral im Gebäude gelegene Stube entwickelt, die über ein Panoramafenster verfügt. Die polygonale Form des Ergeschoßes wird mit einem rechteckigen Obergeschoß, das parallel zu den gegenüberliegenden Berghängen gesetzt ist, kontrastiert und zugleich von der Gesamtform her beruhigt.
Das Gebäude kann in drei unabhängige Einheiten aufgeteilt werden.
[IT]
La posizione della proprietà ha determinato l'edificio in molti modi. Si trova nel punto più alto di una collina in un ampio bacino e consente una vista impareggiabile del paesaggio. La pianta è basata su uno schema di viste che definisce secondo quali formazioni del paesaggio si allineano i diversi spazi.
Il progetto è una demolizione e ricostruzione con ampliamento di cubatura. L'edificio vecchio lascerà il posto ad uno nuovo il cui corpo sarà sistemato meglio nell'ambito paesaggistico:
Il nuovo edificio rinuncia a un sottotetto inutilizzabile e riesce a ridurre l'altezza complessiva dell'edificio di tre metri con un tetto piano. La strutturazione orizzontale dei colori assieme al tetto piano si adatta alla sagoma piana della collina. Le pieghe dividono la facciata in parti più piccole e contrastano la lunghezza dell'edificio.
Il piano superiore ha una colorazione diversa dal piano terra che si basa sulla tonalità dello sfondo: le montagne hanno una tonalità verde-scuro o marrone-scuro o bluastro a seconda della distanza e della stagione - una facciata in legno scuro si distingue poco da queste tonalità.
. Dal lato orientale della strada, l'edificio è molto isolato, su tutti e tre gli altri lati ha aperture molto grandi, che forniscono viste in tutte le direzioni. La pianta è stata sviluppato attorno a una Stube situata centralmente e dotata di una finestra panoramica. La forma poligonale del piano terra è contrastata da un piano superiore rettangolare, che nelle sue facciate è parallelo alle pendici opposte della montagna, e che calma la forma complessiva dell'edificio.
L'edificio può essere diviso in tre unità indipendenti.
Ansicht Süd | Vista da sud
Ansicht Nordwest | Vista da nordovest
Stube | Stube
<
|
|
|
|
INSTITUTE of APPLIED BUNKEROLOGY
ongoing project since 2009
|


[EN]
"Bunkerology" is not a defined term.
In full consciousness of this fact the INSTITUTE OF APPLIED BUNKEROLOGY (IAB) stands for a programmatic approach,
that dedicates itself to architectural, historico-cultural, scientific and artistic issues related to the Italian Alpine Wall,
originally called "Vallo Alpino Littorio" (VAL).
Targets are an extensive accounting of the still largely unexplored VAL, the creation of collective consciousness on this vast
military construction and all the aspects related, as well as a contemporary development and interpretation of the theme.
The IAB is independent.
[IT]
"Bunkerologia" non è un termine definito.
In piena coscienza di questo fatto l'ISTITUTO DI BUNKEROLOGIA APPLICATA (IAB) sta per un approccio programmatico,
che si occupa di questioni architettoniche, storico-culturali, scientifiche ed artistiche legate al Vallo Alpino, originariamente
chiamato "Vallo Alpino Littorio" (VAL).
Gli obbiettivi sono la rielaborazione complessiva del VAL, che in gran parte é ancora inesplorato, la creazione di una coscienza
collettiva sul VAL e tutti gli aspetti correlati, così come la valorizzazione e la interpretazione contemporanea del tema.
L’IAB è indipendente.
[DE]
"Bunkerologie" ist kein definierter Begriff.
In vollem Bewußtsein dessen steht das INSTITUT FÜR ANGEWANDTE BUNKEROLOGIE (IAB) für eine Programmatik,
die sich mit architektonischen, kulturhistorischen, wissenschaftlichen und künstlerischen Fragen im Zusammenhang mit dem
italienischen Alpenwall, ursprünglich als "Vallo Alpino Littorio" (VAL) bezeichnet, befasst.
Ziele sind die umfassende Aufarbeitung des noch weitgehend unerforschten VAL, die Schaffung kollektiven
Bewußtseins über ein militärisches Großbauwerk und allen damit zusammenhängenden Aspekten, sowie eine
zeitgenössische Erschließung und Interpretation des Themas.
Das IAB ist unabhängig.
<
|
|
|
|
Konzept Aussenraumleuchten, Seebad Lunz am See | Concetto per apparecchi luce esterna, Lido Lunz am See
2013
(nicht realisiert | non realizzato)
|


Dem starken Eindruck der natürlichen Umgebung mit See und Bergen eine Materialität entgegenzusetzen oder hinzuzufügen, ohne dabei die Materialität des Ortes aus den Augen zu verlieren, lenkte mich in Richtung der Grundstruktur von Materialien. Metall ist ein elementares Material, das ähnlich wie Wasser, Holz und Stein ohne Zutun des Menschen in der Natur vorkommt. Metall kann sich neben Wasser, Stein oder Holz als Material ebenbürtig behaupten, jedoch immer in Korrespondenz mit diesen.
Eine verzinkte Metalloberfläche, die ähnlich der Natur nirgendwo gleich ist, sondern durch die Eigenschaften des Materials und seines Auftragungsprozesses an jeder Stelle eine unterschiedliche Oberflächenbeschaffenheit aufweist, schien eine passende Materialwahl zu sein. Ein einfärbig lackiertes Metallobjekt, das auf einer Wiese neben diversen Pflanzen am Seeufer steht, würde im Gegensatz dazu optisch herausfallen.
Um den Aufwand einer Zertifizierung zu umgehen bot sich daher an, ein möglichst kostengünstiges und bereits zertifiziertes Produkt heranzuziehen: eine außenraumtaugliche Ovalleuchte wie sie aus Kellern bekannt ist. Durch eine besondere Art der Verwendung sollte sie nicht als solche wirken sondern eine Veredelung erfahren. Die Leuchte nimmt die Feierlichkeit des Weges zu einer Bühne hin mit auf, beleuchtet durch kleine Lichtpunkte subtil die natürliche Umgebung und deutet im Freien einen Innenraum an.
Die Kellerleuchte wird mit verzinktem Metall umhüllt, der gekrümmte Verlauf des metallernen Lampenschirms an der neuen Leuchte deutet in vereinfachter Form auf seine textilen Verwandten hin. Durch die Lochung des Lampenschirms enstehen an umgebenden Bäumen, der Wiese sowie den Gebäuden kleine Lichtpunkte, die ihrerseits eine Form von Dekor erzeugen.
Ein weiterer Gedanke war jener, einen Lampenkörper aus einem durchgehenden Stück Metall zu formen. Wobei das Metall an jenen Stellen, wo es Licht durchlassen muss, dementsprechend gelocht werden sollte und umgekehrt in seiner Ursprünglichkeit belassen werden sollte, wo es lichtundurchlässig sein muss.
Bezüglich Funktionalität galt es folgende Kriterien zu erfüllen: keine Blendung, Demontierbarkeit für Wintermonate, durchgängiges Material, vereinfachte handwerkliche Herstellung.



Studie des Lichtwurfs




<
|
|
|
|
Logodesign
2012
|
Entwurf eines Logos für ein Nachrichten- und Community Portal | Ideazione Logo per un portale d'informazione e social network


<
|
|
|